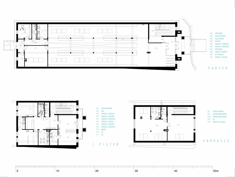
projekt budynku handlowo-usługowego; Połaniec, ul. Uniwersału Połanieckiego
‹
›
1
2
3
Ar-De Studio - wszelkie prawa autorskie do projektów zastrzeżone