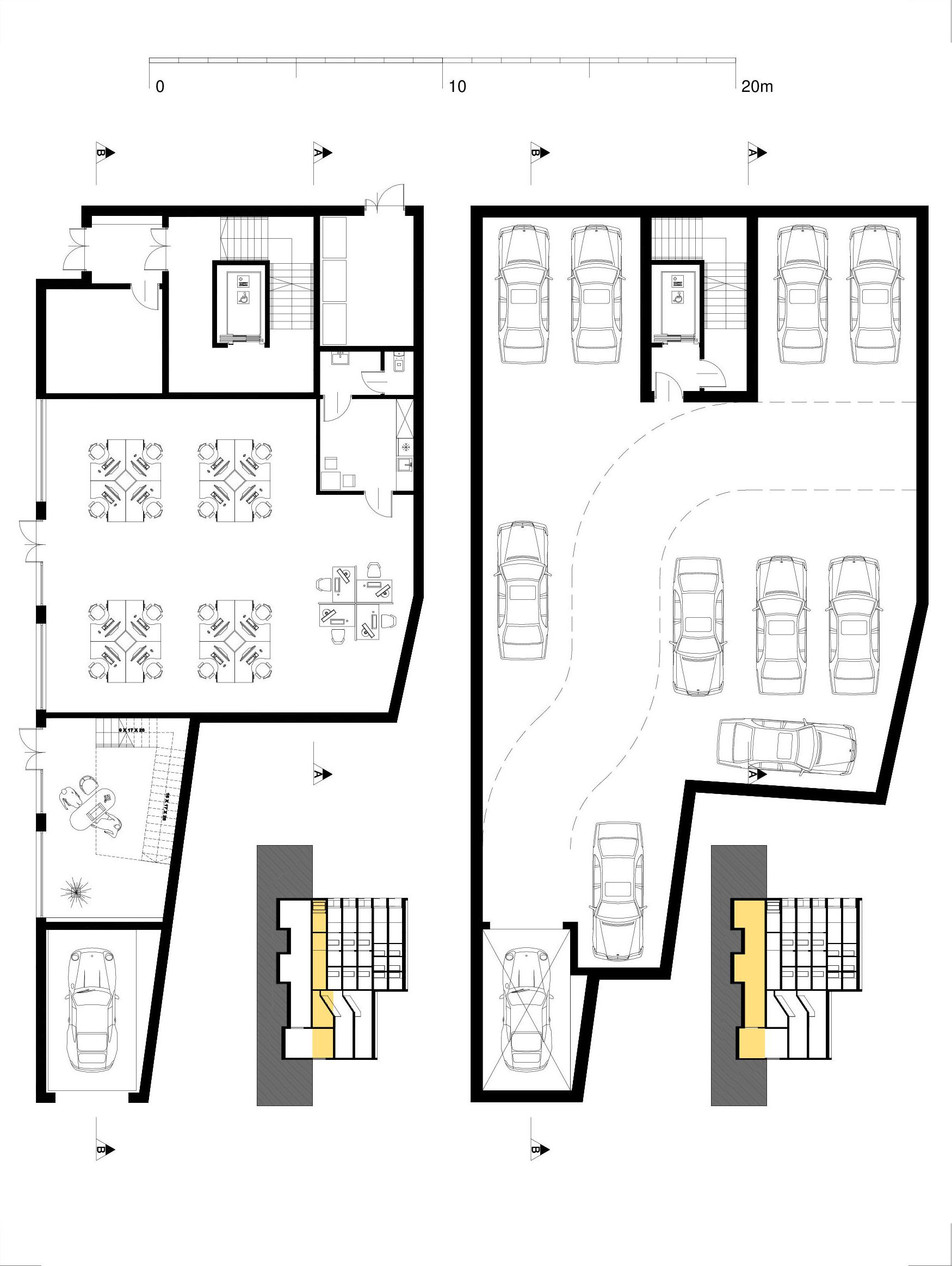
projekt budynku mieszkalnego wielorodzinnego z usługami; Kraków, ul. Łepkowwskiego
‹
›
1
2
3
Ar-De Studio - wszelkie prawa autorskie do projektów zastrzeżone