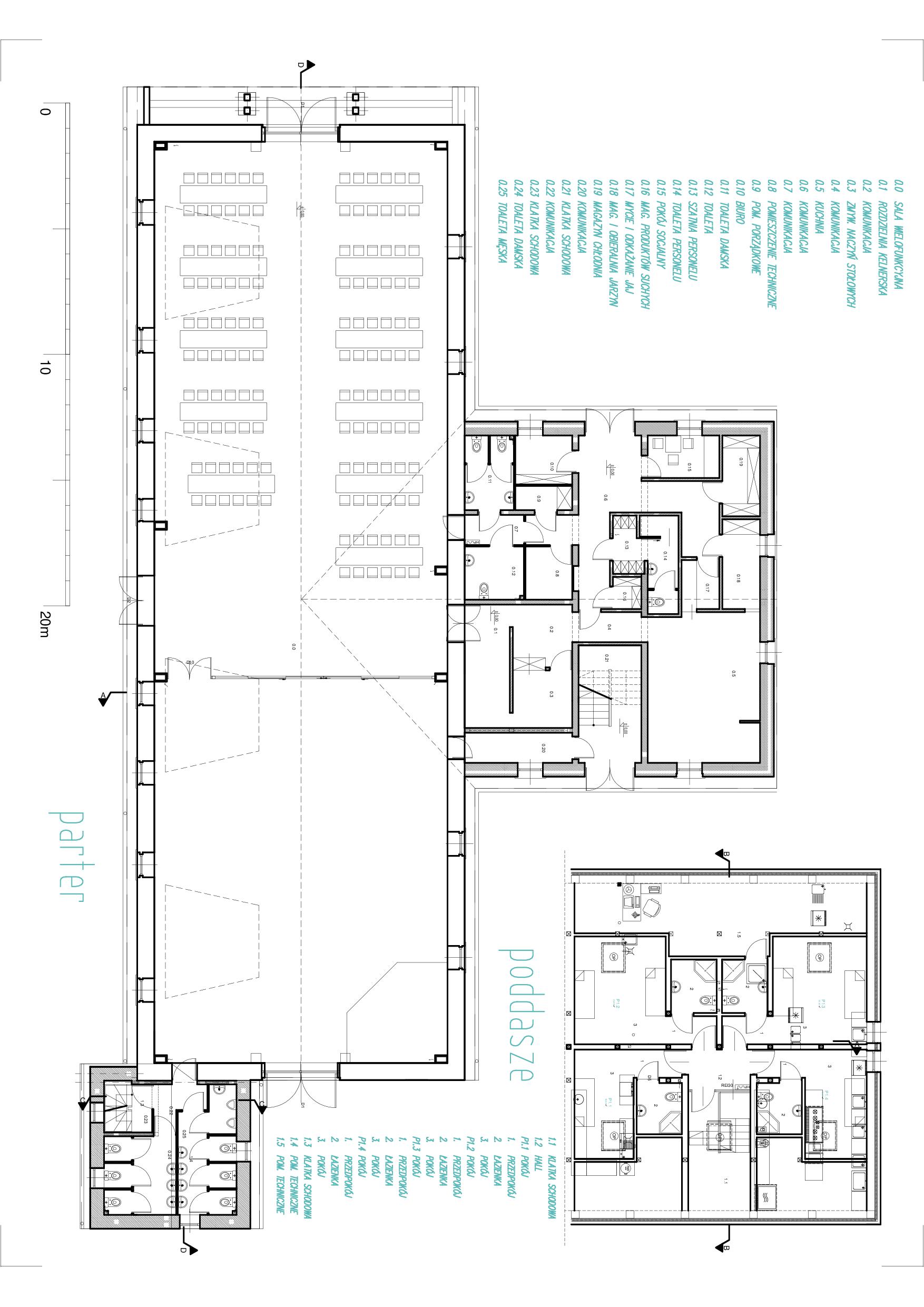
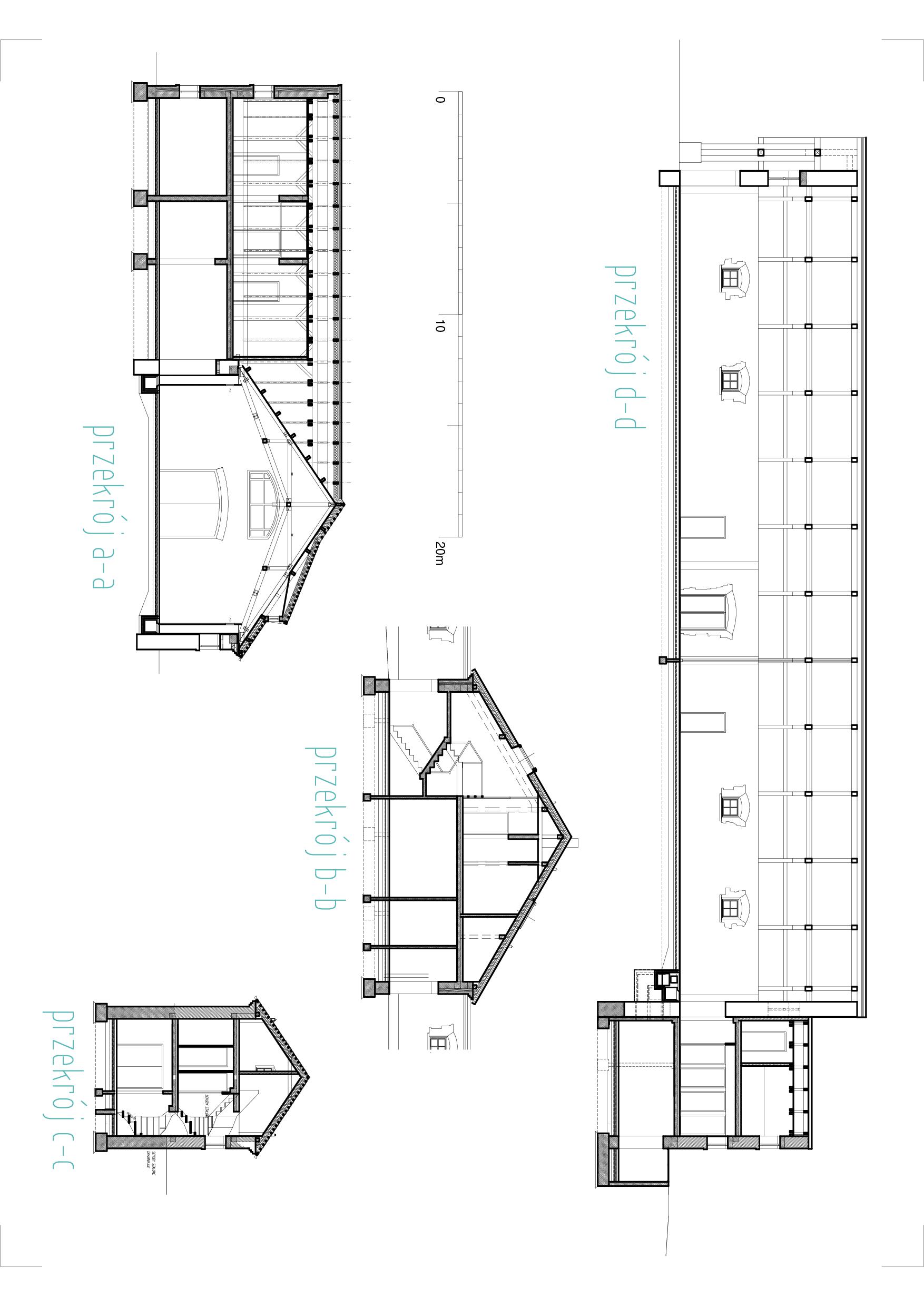
projekt adaptacji zabytkowej stajni na obiekt wielofunkcyjny z zapleczem gastronomicznym; Karszew, gm. Dąbie
‹
›
1
2
3
Ar-De Studio - wszelkie prawa autorskie do projektów zastrzeżone