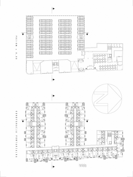
projekt hotelu z usługami w parterze; Kraków, ul. Halicka
‹
›
1
2
3
Ar-De Studio - wszelkie prawa autorskie do projektów zastrzeżone