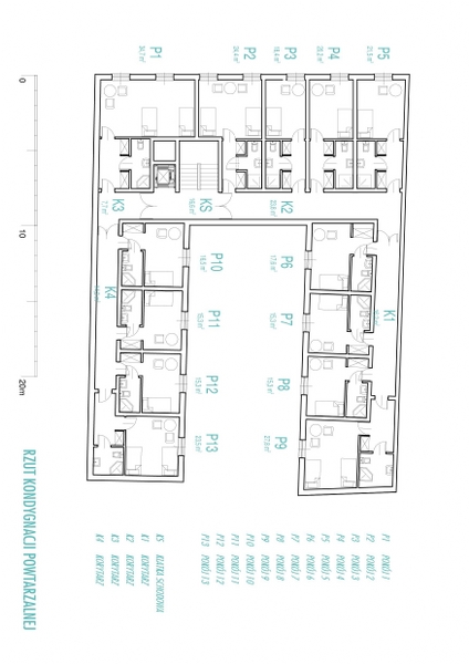
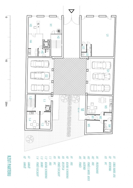
projekt hotelu; Kraków, ul. Dajwór
‹
›
1
2
3
Ar-De Studio - wszelkie prawa autorskie do projektów zastrzeżone