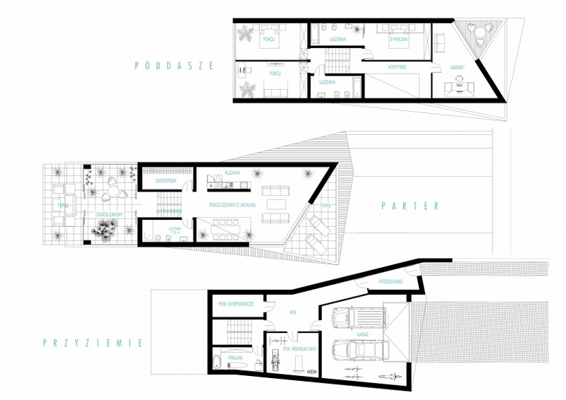
projekt budynku mieszkalego jednorodzinnego; Kraków, ul. Chełmska
‹
›
1
2
3
Ar-De Studio - wszelkie prawa autorskie do projektów zastrzeżone